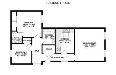
NOT TO SCALE AND MEASUREMENTS ARE ONLY APPROXIMATE
View full disclaimer
Whilst every attempt has been made to ensure the accuracy of the floor plan contained here,
measurements of doors, windows, rooms and any other items are approximate and no responsibility
is taken for any error, omission, or mis-statement. This plan is for illustrative purposes only
and should be used as such by any prospective purchaser. The services, systems and appliances
shown have not been tested and no guarantee as to their operability or efficiency can be given